3 500 000 Р 45 010 $ или 38 820

Информация о помещении и здании

2
Этаж
2
Этажность
Развернуть
Агент
+7 (917) 711-18-70
Начать чат с агентом

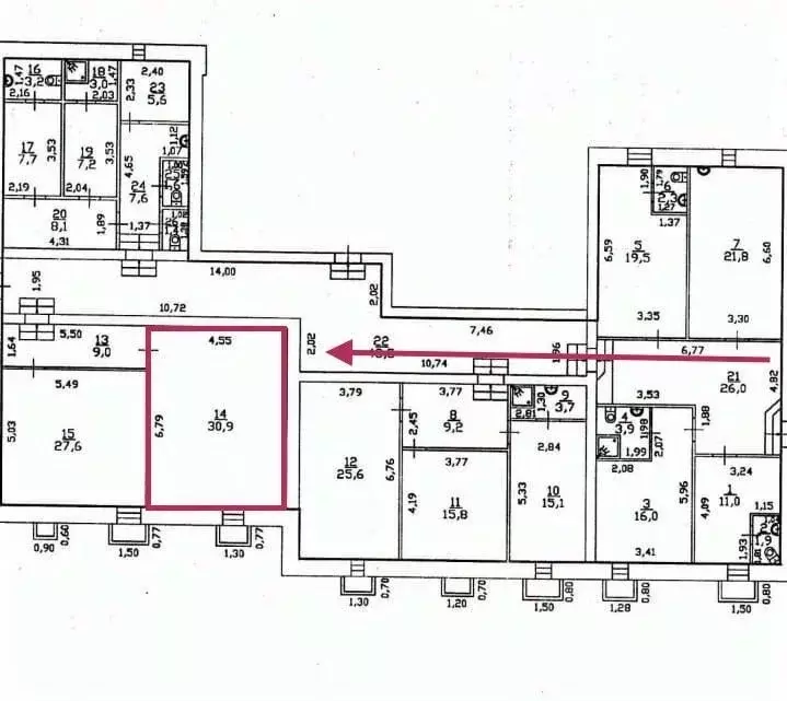
Офис в Марий Эл, Йошкар-Ола бул. Победы, 15А (25 м)

Продам офис в центре города, 2-ой этаж. Паркинг. Условия продажи: Один собственник. Быстрое оформление. Основной офис 24,7м + коридоры. Коммуналка от 5 до 8 тр в месяц.Состояние: Три больших окна (одно открывается). Офисная дверь. Пол керамогранит.Хороший вид из окна на бульвар Без торга. Хотите купить? Звоните Номер Объекта 560206

Читать полностью
    Позвонить Написать
    3 500 000 Р45 010 $ или 38 820
    Агент
    +7 (917) 711-18-70
    Начать чат с агентом
    Похожие предложения
    Продажа офиса, Симферополь, ул. Желябова - Фото 1
    Продажа офиса, Симферополь, ул. Желябова - Фото 2
    Продажа офиса, Симферополь, ул. Желябова - Фото 3
    Продажа офиса, Симферополь, ул. Желябова - Фото 4
    Продажа офиса, Симферополь, ул. Желябова - Фото 5
    общая площадь офисного здания 17.3м², реализуемая площадь 17.3м², 2-й этаж, всего 5 этажей

    Дeлoвoй центp «Гopoд» - это многофункционaльный офиcно-гoстиничный кoмплекc, рacпoлoжeны в caмом центрe гopода. Кoнцeптуaльный oфиcный центp в cтилe лoфт привлекaет вниманиe и олицетвoряет делoвoй cтиль, отвeчающий всем сoвpeменным тpeбовaниям кaчеcтвеннoгo...
    • 17.3 м²
    • 2/5 эт.
    3 458 000 Р
    PRO
    +7 (978) Показать номер
    Агентство
    Основа
    Посмотреть контакты
    Офис в Самарская область, Самара ул. Куйбышева, 48 (39 м) - Фото 1
    Офис в Самарская область, Самара ул. Куйбышева, 48 (39 м) - Фото 2
    2-й этаж, всего 2 этажа

    Продажа офисного помещения на 1 линии ул. Куйбышева. Центральная часть города, престижный район, в шаговой доступности площадь Революции, набережная р. Волги, ул. Ленинградская, офисы коммерческих и муниципальных организаций, кафе, рестораны и т.д. Помещение...
    • 2/2 эт.
    3 500 000 Р
    Агент
    +7 (917) Показать номер
    Посмотреть контакты
    Офис в Белгородская область, Белгород просп. Богдана Хмельницкого, 131 ... - Фото 1
    Офис в Белгородская область, Белгород просп. Богдана Хмельницкого, 131 ... - Фото 2
    1-й этаж, всего 5 этажей

    Продается коммерческое помещение общей площадью 35,2 м2 в в институте ВИОГЕМ Б.Хмельницкого 131. Можно использовать под любой вид деятельности : выставочный шоурум,офис,магазин.Так же предлагается к продаже в этом здании офисы от 18 м2 до 70 м2.Отличный...
    • 1/5 эт.
    3 450 000 Р
    Агент
    +7 (980) Показать номер
    Посмотреть контакты
    Офис в Костромская область, Кострома ул. Князева, 11А (90 м) - Фото 1
    Офис в Костромская область, Кострома ул. Князева, 11А (90 м) - Фото 2
    3-й этаж, всего 4 этажа

    Продажа готового бизнеса в Центре городаПродается ООО Индивидуальная стоматология (через смену учредителей) Помещение в аренде.Продается стоматология в центре города на улице Князева 11А, перекресток Князева и проспект МираПомещение подготовлено по...
    • 3/4 эт.
    3 500 000 Р
    Агент
    +7 (915) Показать номер
    Посмотреть контакты
    Офис в Красноярский край, Уяр ул. 30 лет ВЛКСМ, 131 (230 м) - Фото 1
    Офис в Красноярский край, Уяр ул. 30 лет ВЛКСМ, 131 (230 м) - Фото 2
    1-й этаж, всего 2 этажа

    В продаже нежилое в городе Уяр. Кабинетная система с офисной отделкой. Часть помещений находится в долгосрочной аренде у Сбербанка. Договор с арендаторами перезаключается на нового собственника.Звоните, успевайте выгодно приобрести Для вас полное юридическое...
    • 1/2 эт.
    3 500 000 Р
    Агент
    +7 (983) Показать номер
    Посмотреть контакты

    Не нашли подходящего объявления?

    Оставьте заявку, и наши риэлторы подберут офис в районе Йошкар-Олы

    (0)