18 100 000 Р 221 100 $ или 191 100

Информация о коттедже

285 м2
Площадь
2
Этажность
15 cоток
Участок

Дополнительная информация

Дом продаётся вместе с участком
есть
Развернуть
Агент
+7 (917) 704-43-71
Начать чат с агентом

Дом в Йошкар-Ола, проезд Мышино (285 м)

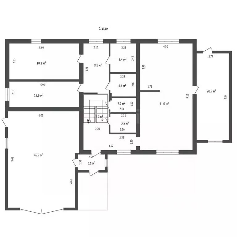
К продаже предлагается просторный двухэтажный коттедж с черновой отделкой, расположенный на огороженном участке в 15 соток. Дом возведен из керамического кирпича с железобетонными перекрытиями и утепленной кровлей, что гарантирует прочность и высокую энергоэффективность. Площадь участка позволяет разместить баню, беседку или организовать огород, а придомовая территория уже благоустроена: отмостка и площадка перед гаражом выложены брусчаткой, часть участка засеяна газоном. Ключевое преимущество — наличие теплого сухого подвала и вместительного гаража на две машины, а также закрытой веранды. Планировка функциональна и рассчитана на комфортное проживание большой семьи. На первом этаже расположены гардеробная, раздельный санузел, прачечная, котельная, спальная комната и большая кухня-гостинная. Второй этаж, куда ведет металлическая лестница, отведен под приватную зону: здесь находятся 3 спальни, одна из которых — мастер-спальня с гардеробной, и отдельный санузел. Инженерные коммуникации: заключены договоры на холодное водоснабжение и электроснабжение, дом подключен к двум канализационным колодцам, а вдоль границы участка проходит подземный газопровод для возможного подключения. Объект принадлежит единственному собственнику, все юридические документы в полном порядке, что обеспечивает безопасную и прозрачную сделку. Код пользователя: 197541Номер в базе:

Читать полностью

    Для того, чтобы купить 2-этажный коттедж по адресу: Йошкар-Ола, проезд Мышино, позвоните по телефону +7 (917) 704-43-71. Торопитесь! Объявление №50016843976 о продаже двухэтажного коттеджа опубликовано 11 марта 2026.

    Позвонить Написать
    18 100 000 Р221 100 $ или 191 100
    Агент
    +7 (917) 704-43-71
    Начать чат с агентом
    Похожие предложения
    Дом в Марий Эл, Йошкар-Ола ул. Белинского, 26 (264 м) - Фото 1
    Дом в Марий Эл, Йошкар-Ола ул. Белинского, 26 (264 м) - Фото 2
    2 этажа, общая площадь 264м², участок 6 соток

    Арт.Дом 264 м в центре города — идеальный холст для вашего дизайна Продается капитальный 2-этажный дом площадью 264 кв.м на участке 6 соток. Дом расположен в центре города, что совмещает в себе комфорт загородной жизни и доступность городской инфраструктуры....
    • 2 эт.
    • 264 м²
    • 6 сот.
    17 300 000 Р
    Агент
    +7 (917) Показать номер
    Посмотреть контакты
    Дом в Марий Эл, Йошкар-Ола ул. Караваева, 16 (195 м) - Фото 1
    Дом в Марий Эл, Йошкар-Ола ул. Караваева, 16 (195 м) - Фото 2
    2 этажа, общая площадь 194м², участок 10 соток

    Федеральное агентство недвижимости ЭТАЖИ представляет вам уникальную возможность приобрести уютный дом в микрорайоне Звездном города Йошкар-Олы. Этот объект — идеальный выбор для тех, кто мечтает о собственном доме, но в то же время хочет оставаться...
    • 2 эт.
    • 194 м²
    • 10 сот.
    18 990 000 Р
    Агент
    +7 (987) Показать номер
    Посмотреть контакты
    Дом в Марий Эл, Йошкар-Ола проезд Мышино, 18 (285 м) - Фото 1
    Дом в Марий Эл, Йошкар-Ола проезд Мышино, 18 (285 м) - Фото 2
    2 этажа, общая площадь 285м², участок 15 соток

    К продаже предлагается просторный двухэтажный коттедж с черновой отделкой, расположенный на огороженном участке в 15 соток. Дом возведен из керамического кирпича с железобетонными перекрытиями и утепленной кровлей, что гарантирует прочность и высокую...
    • 2 эт.
    • 285 м²
    • 15 сот.
    18 100 000 Р
    Агент
    +7 (987) Показать номер
    Посмотреть контакты
    Дом в Йошкар-Ола, улица Белинского, 26 (264.1 м) - Фото 1
    Дом в Йошкар-Ола, улица Белинского, 26 (264.1 м) - Фото 2
    2 этажа, общая площадь 264м², участок 6 соток

    Арт.Дом 264 м в центре города — идеальный холст для вашего дизайна Продается капитальный 2-этажный дом площадью 264 кв.м на участке 6 соток. Дом расположен в центре города, что совмещает в себе комфорт загородной жизни и доступность городской инфраструктуры....
    • 2 эт.
    • 264 м²
    • 6 сот.
    17 300 000 Р
    Агент
    +7 (903) Показать номер
    Посмотреть контакты
    Коттедж в Марий Эл, Медведевский район, Нурминское с/пос, д. Елемучаш  ... - Фото 1
    Коттедж в Марий Эл, Медведевский район, Нурминское с/пос, д. Елемучаш  ... - Фото 2
    2 этажа, общая площадь 277м², участок 24 сотки

    Арт.СРОЧНАЯ ПРОДАЖА Субсидированная ставка по ипотеке 15,49 ВСЕГО 10 МИНУТ ОТ ВОДОКАНАЛА ПО ТРАССЕ и вы окажетесь в прекрасном, спокойном и уединенном месте среди природы. Деревня Елемучаш.Продаем шикарный дом 277 кв.м. с дизайнерским ремонтом, расположенным...
    • 2 эт.
    • 277 м²
    • 24 сот.
    18 900 000 Р
    Агент
    +7 (917) Показать номер
    Посмотреть контакты

    Не нашли подходящего объявления?

    Оставьте заявку, и наши риэлторы подберут купить дом в районе Йошкар-Олы

    (0)