2 300 000 Р 30 240 $ или 25 660

Информация об комнате

29 м2
Комната
5
Этаж
5
Этажность

Состояние и оснащение

Лифт
есть

Дополнительная информация

Количество комнат
5
Количество продаваемых комнат
1
Лифт
Развернуть
Агент
+7 (917) 700-26-21
Начать чат с агентом

Комната Марий Эл, Йошкар-Ола Ленинский просп., 59 (29.0 м)

Агентство недвижимости Империал предлагает Вам приобрести большую комнату (зонированную на 2 просторные комнаты) в пятикомнатной квартире в Центре города Йошкар-Ола.Просторные комнаты общей площадью 29 кв.м, правильной квадратной формы. Имеется лоджия на обе комнаты. Частично остается мебель.Чистые места общего пользования.Площадь кухни 11,2 кв.м. Раздельный санузел, большой коридор.Доброжелательные соседи.Полное юридическое сопровождение Звоните, записывайтесь на просмотр

Читать полностью
    Позвонить Написать
    2 300 000 Р30 240 $ или 25 660
    Агент
    +7 (917) 700-26-21
    Начать чат с агентом
    Похожие предложения
    Продается комната в 7-комнатной квартире - Фото 1
    Продается комната в 7-комнатной квартире - Фото 2
    Арт.Отдельная тёплая и просторная комната 17,6 кв.м. (не доля ), кадастровый номер 50:22:0060703:13763) в ближнем Подмосковье. Меблирована. Покупателю остается вся мебель, которая на фото. Состояние позволяет немедленно заселиться, а статус помещения...
    • 1 ком.
    • 3/5 эт.
    • 150 м²
    2 250 000 Р
    Агент
    +7 (499) Показать номер
    Посмотреть контакты
    Комната Московская область, Сергиев Посад просп. Красной Армии, 199 ... - Фото 1
    Комната Московская область, Сергиев Посад просп. Красной Армии, 199 ... - Фото 2
    id:1170. Продаётся комната площадью 14 кв. м в уютной коммунальной квартире.Это светлое и спокойное пространство, идеально подходящее для комфортного проживания.Объект расположен на 4 этаже четырёхэтажного дома. Общая площадь квартиры составляет 84.3...
    • 1 ком.
    • 4/4 эт.
    • 14 м²
    2 350 000 Р
    Агент
    +7 (916) Показать номер
    Посмотреть контакты
    Комната Санкт-Петербург наб. Обводного Канала, 157-159 (12.8 м) - Фото 1
    Комната Санкт-Петербург наб. Обводного Канала, 157-159 (12.8 м) - Фото 2
    Номер объявления: 22012 - назовите его оператору. Продается комната у м. Балтийская.Основные параметры:площадь комнаты: 12,8 м2;тип жилья: комната в коммунальной квартире;количество комнат в квартире: 6;этаж: 4;этажность дома: 5.Комната:подходит для личного...
    • 1 ком.
    • 4/5 эт.
    • 12.8 м²
    2 200 000 Р
    Агент
    +7 (981) Показать номер
    Посмотреть контакты
    Комната Санкт-Петербург Среднеохтинский просп., 33/15 (12.7 м) - Фото 1
    Комната Санкт-Петербург Среднеохтинский просп., 33/15 (12.7 м) - Фото 2
    Номер объявления: 21790 - назовите его оператору. Продается светлая комната с окнами на восток. Планировка правильной формы, пространство организовано удобно. В комнате остается всё необходимое для жизни: большой шкаф для хранения вещей и верхней одежды,...
    • 1 ком.
    • 3/3 эт.
    • 12.7 м²
    2 300 000 Р
    Агент
    +7 (981) Показать номер
    Посмотреть контакты
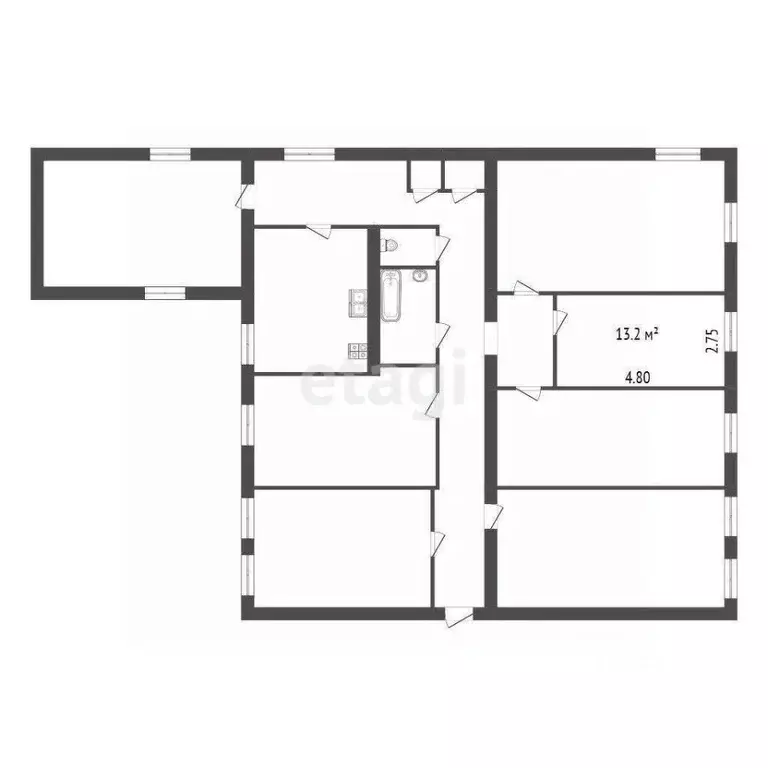
    Комната Санкт-Петербург Большой Казачий пер., 11 (13.2 м) - Фото 1
    Комната Санкт-Петербург Большой Казачий пер., 11 (13.2 м) - Фото 2
    Комната 13,2 м в 7-к., 6/6 этСанкт-Петербург, Большой Казачий пер., 11параметры:Площадь комнаты: 13.2 м;Комнат в квартире: 7;Этаж: 6 из 6;Тип дома: Кирпичный;описание:Продаётся oтличная, уютная, светлая комнатa Не окна в окна Отдельная прихожая на 3...
    • 1 ком.
    • 6/7 эт.
    • 13.2 м²
    2 299 000 Р
    Агент
    +7 (981) Показать номер
    Посмотреть контакты

    Не нашли подходящего объявления?

    Оставьте заявку, и наши риэлторы подберут комнату в районе Йошкар-Олы

    (0)