Реализация объекта недвижимости приостановлена

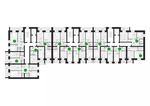
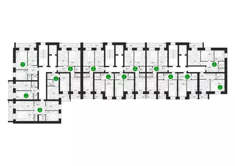
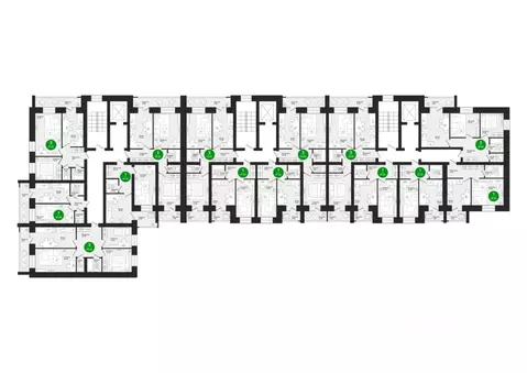
Информация о квартире

64.0 м2
Площадь
2
Комнаты
8
Этаж
9
Этажность
Развернуть

2-к кв. Марий Эл, Йошкар-Ола городской округ, с. Семеновка, Овощевод ...

Продаётся 2-комнатная квартира в строящемся доме (Позиция 4), срок сдачи: IV-кв. 2025, общей площадью 64.2 кв.м., на 8 этаже. Новый жилой дом от застройщика ПМК-асположен в с. Семеновка городского округа Йошкар-Ола на ул. Молодежная.

Читать полностью

    Реализация объекта недвижимости приостановлена

    Не нашли подходящего объявления?

    Оставьте заявку, и наши риэлторы подберут квартиру в новостройке в районе Семеновки

    (0)