24 900 000 Р 324 900 $ или 276 200

Информация об помещении

1
Этаж

Состояние и оснащение

Количество этажей
2
Развернуть
Агент
+7 (987) 730-88-59
Начать чат с агентом

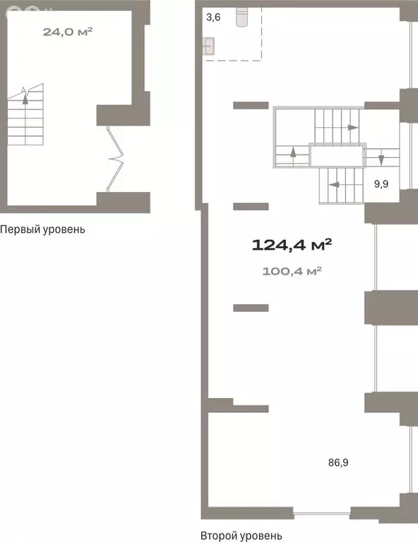
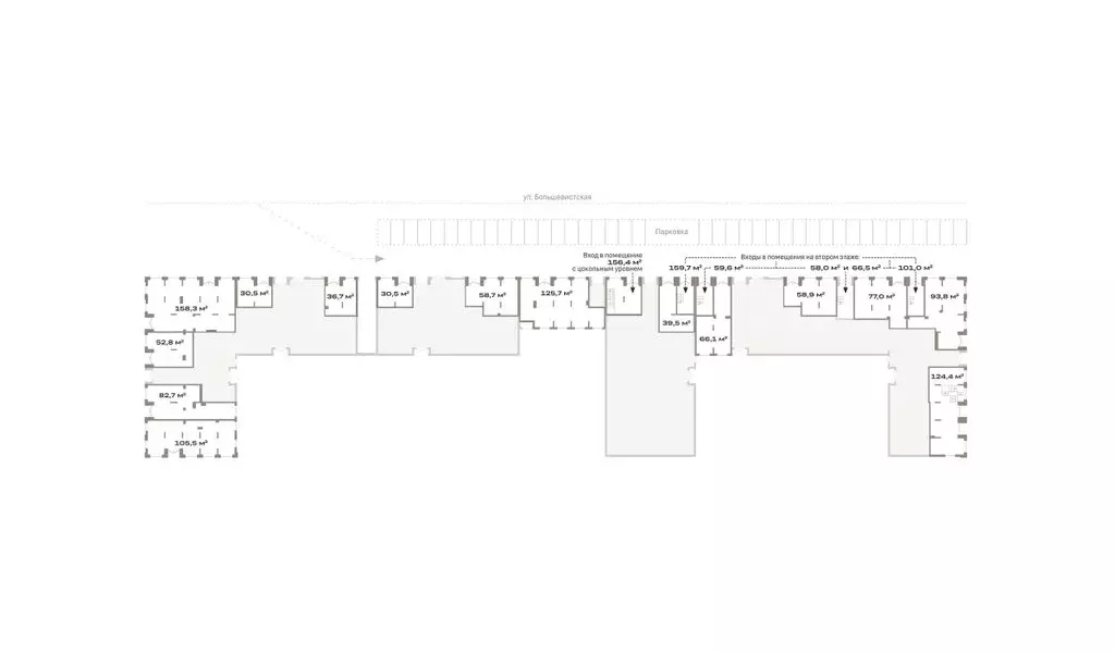
Помещение свободного назначения в Марий Эл, Волжск Транспортная ул., ...

Федеральное агентство недвижимости Этажи, предлагает вашему вниманию помещение свободного назначения в г. Волжск. (ул. Транспортная 7А)-Данный объект имеет отличное месторасположение хорошие подъездные пути и доступность, по соседству располагается Пожарная часть и Марий Эл Дорстрой, дорога до объекта чиститься круглогодично, идеально подходит для небольшого производства, в части здания высокие потолки от 3,5-5.5 метров. -Общая площадь объекта 1543 м2 (1334м2 площадь здания бывшей СТО, 210 м2 зона гаражей или холодного склада)-Площадь земельного участка 29,3 соток, границы участка отмечены на фото, есть парковочное пространство перед зданием, большая часть участка асфальтирована ( Участок находится в собственности, есть возможность расширения данного ЗУ в сторону СНТ)-Здание подключено к центральным коммуникациям( Вода, газ, электроэнергия)-В здании произведен капитальный ремонт кровли, сделали полностью новую крышу.- При необходимости есть возможность расширение самого объекта путем пристройки и соединение основного здания и с холодным складом. -Цена объекта , указана с НДС.-Полное юридическое сопровождение, помощь с оформлением на всех этапах.-Рассмотрим все варианты расчета, торг и все условия обсуждаются после показа. Код пользователя: 112607Номер в базе: 5808957

Читать полностью
    Позвонить Написать
    24 900 000 Р324 900 $ или 276 200
    Агент
    +7 (987) 730-88-59
    Начать чат с агентом
    Похожие предложения
    Помещение свободного назначения в Ярославская область, Ярославль ... - Фото 1
    Помещение свободного назначения в Ярославская область, Ярославль ... - Фото 2
    ОТ СОБСТВЕННИКА. БЕЗ КОМИССИИ ДЛЯ ПОКУПАТЕЛЯ.* Работаем без выходных и праздников. Звоните с 10:00 до 20:00 *Продам торговое помещение с отдельным входом в 500 м от пр-та Толбухина.Адрес: Мышкинский пр-д, 10 (первый этаж, отдельный вход).Назначение: магазин,...
    • 1/3 эт.
    25 500 000 Р
    Агент
    +7 (915) Показать номер
    Посмотреть контакты
    Помещение свободного назначения в Москва Салтыковская ул., 6/1к5 (117 ... - Фото 1
    Помещение свободного назначения в Москва Салтыковская ул., 6/1к5 (117 ... - Фото 2
    Коммерческое помещение площадью 116.7 м, расположено по адресу: г. Москва, Салтыковская улица, 6/1к5, помещение 4Н, район Косино-Ухтомский. Объект занимает 1 этаж в здании с этажностью 14 этажей. Помещение без отделки, свободного назначения, имеет отдельный...
    • 1/14 эт.
    24 869 000 Р
    Агент
    +7 (985) Показать номер
    Посмотреть контакты
    Помещение свободного назначения в Московская область, Мытищи ул. Мира, ... - Фото 1
    Помещение свободного назначения в Московская область, Мытищи ул. Мира, ... - Фото 2
    Продается помещение свободного назначения площадью 103 кв м, первая линия от дороги, отдельный вход. Свободная планировка без внутренних несущих конструкций, потолки 4 метра, своя отдельная стационарная вытяжка.Центр города, рядом Администрация. Жилой...
    • 1/5 эт.
    24 000 000 Р
    Агент
    +7 (985) Показать номер
    Посмотреть контакты
    Помещение свободного назначения в Санкт-Петербург Лиговский просп., ... - Фото 1
    Помещение свободного назначения в Санкт-Петербург Лиговский просп., ... - Фото 2
    7-28264 Предлагается в продажу коммерческое помещение 146.6 м2 свободного назначения.Помещение находится на 5 этаже здания, расположенного в историческом центре Санкт-Петербурга.Функциональная планировка: кабинетная и двусторонняя.Высокие потолки, более...
    • 1/5 эт.
    25 000 000 Р
    Агент
    +7 (981) Показать номер
    Посмотреть контакты
    Помещение свободного назначения в Новосибирская область, Новосибирск ... - Фото 1
    Помещение свободного назначения в Новосибирская область, Новосибирск ... - Фото 2
    Предлагаем в покупку объект коммерческой недвижимости свободного назначения. Помещение полностью оборудовано под офис для комфортной работы 20 - 25 человек, кондиционирование всех помещений, просторная комната для переговоров, для персонала оборудована...
    • 3/3 эт.
    24 000 000 Р
    Агент
    +7 (983) Показать номер
    Посмотреть контакты

    Не нашли подходящего объявления?

    Оставьте заявку, и наши риэлторы подберут псн в районе Волжска

    (0)